Obras realizadas > Edificios

Capitol IV

Neuquén 648
Caballito, CABA


Piscina: 8

Ascensores: 1

Cochera:

Vigilancia: No

Piscina: No

Baulera: No

Características:

  • Edificio en propiedad Horizontal de PB + 8 niveles
  • Monoambientes, monoambientes divisibles y 3 ambientes
  • Unidades desde 35 m2 a 76 m2
  • Cocheras Optativas
  • Amplio hall de entrada
  • Tarquini en frente y contrafrente
  • Amplios balcones con baranda de vidrio laminado y barandal Aluar A30
  • Parrillas individuales en los balcones
  • Agua Caliente Central y demás servicios Individuales
  • Pisos de Porcelanato en estar y madera maciza en dormitorios
  • Grifería FV, artefactos sanitarios Roca
  • Incluye Splits en todos los ambientes
Ver planos

3 Ambientes 7mo

Ambientes: 3

Superficies:

  • Cubierta: 76 m²
  • Total: 76 m²

Orientación: Contrafrente

Balcón:

Tipo de Pisos: Porcelanato en living comedor, cocina y paso. Madera maciza para los dormitorios.

Revestimientos: Porcelanato en baños.

Unidades: 7mo B

Descripción: Unidad de 3 ambientes, con baño principal y toillete Cocina integrada con desayunador Carpinterías de aluminio anodizado natural Modena 2 Aluar Certificado Barandas de aluminio anodizado natural A30 y vidrios laminados Terminaciones de categoría Parrilla individual en balcón Splits LG en todos los ambientes Cocheras opcionales


3 Ambientes – Dpto A

Ambientes: 3

Superficies:

  • Cubierta: 72 m²
  • Total: 72m²

Orientación: Frente

Balcón: Si

Tipo de Pisos: Porcelanato en living comedor, cocina y paso. Madera maciza para los dormitorios.

Revestimientos: Cerámicos en baños.

Unidades: 1ro al 7mo A

Descripción: Unidad de 3 ambientes, con baño principal y toillete. Cocina integrada. Carpinterías de aluminio anodizado natural Modena 2 Aluar Certificado. Barandas de aluminio anodizado natural A30 y vidrios laminados. Grifería FV y artefactos Sanitarios Roca Terminaciones de categoría. Parrilla individual en balcón. Cocheras opcionales. Splits LG en todos los ambientes.


Monoambiente divisible

Ambientes: 1

Superficies:

  • Cubierta: 46 m²
  • Total: 46 m²

Orientación: Contrafrente

Balcón: Si

Tipo de Pisos: Porcelanato en living comedor y cocina.

Revestimientos: Porcelanato en baños.

Unidades: 1ro al 6to B

Descripción: Unidad de mono ambiente, con baño principal. Cocina integrada con desayunador. Carpinterías de aluminio anodizado natural Modena 2 Aluar Certificado. Barandas de aluminio anodizado natural y vidrios. Terminaciones de categoría. Parrilla individual en balcón. Cocheras opcionales.


Monoambiente

Ambientes: 1

Superficies:

  • Cubierta: 35 m²
  • Total: 35 m²

Orientación: Contrafrente

Balcón:

Tipo de Pisos: Porcelanato en living comedor y cocina.

Revestimientos: Cerámicos en baños.

Unidades: 1ro al 6to C

Descripción: Unidad de mono ambiente, con baño principal. Cocina integrada. Carpinterías de aluminio anodizado natural Modena 2 Aluar Certificado. Barandas de aluminio anodizado natural A30 y vidrios laminados. Grifería FV y artefactos Sanitarios Roca. Terminaciones de categoría. Cocheras opcionales. Incluye Split LG en ambiente principal.


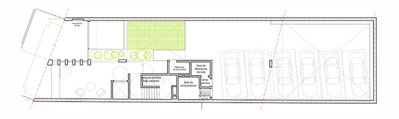
Cochera Cubierta

Ambientes: 1

Superficies:

  • Cubierta: 12.5 m²
  • Total: 12.5 m²

Orientación: Frente

Descripción: Cocheras Nº 1 y 2


Cochera Descubierta

Ambientes: 1

Superficies:

  • Cubierta: 12.5 m²
  • Total: 12.5 m²

Orientación: Frente

Descripción: Cocheras Nº 3, 4, 5, 6 Disponibles a la venta Nº 3 y 6

CI
CII
CIII
CIV
Más edificios